MARTIN ALORAS
Edificio Boreas
El Barrio Pichincha es un sector de la ciudad de Rosario de baja densidad en pleno desarrollo e inmejorable ubicación geográfica. Este polo urbano es sometido a un nuevo Plan Urbanístico Especial que lleva el nombre del barrio, el cual, con el fin de preservar su escala y patrimonio urbanístico, restringe las alturas máximas de las nuevas construcciones. Este control al desarrollo inmobiliario detiene la construcción de edificios de vivienda y el valor de cambio de las propiedades se modifica siendo alquiladas para usos que la nueva ordenanza admite.
La proliferación de locales gastronómicos y clubes nocturnos inmediatamente cambia la fisonomía del barrio y le otorga un carácter particularmente heterogéneo como también un futuro incierto.
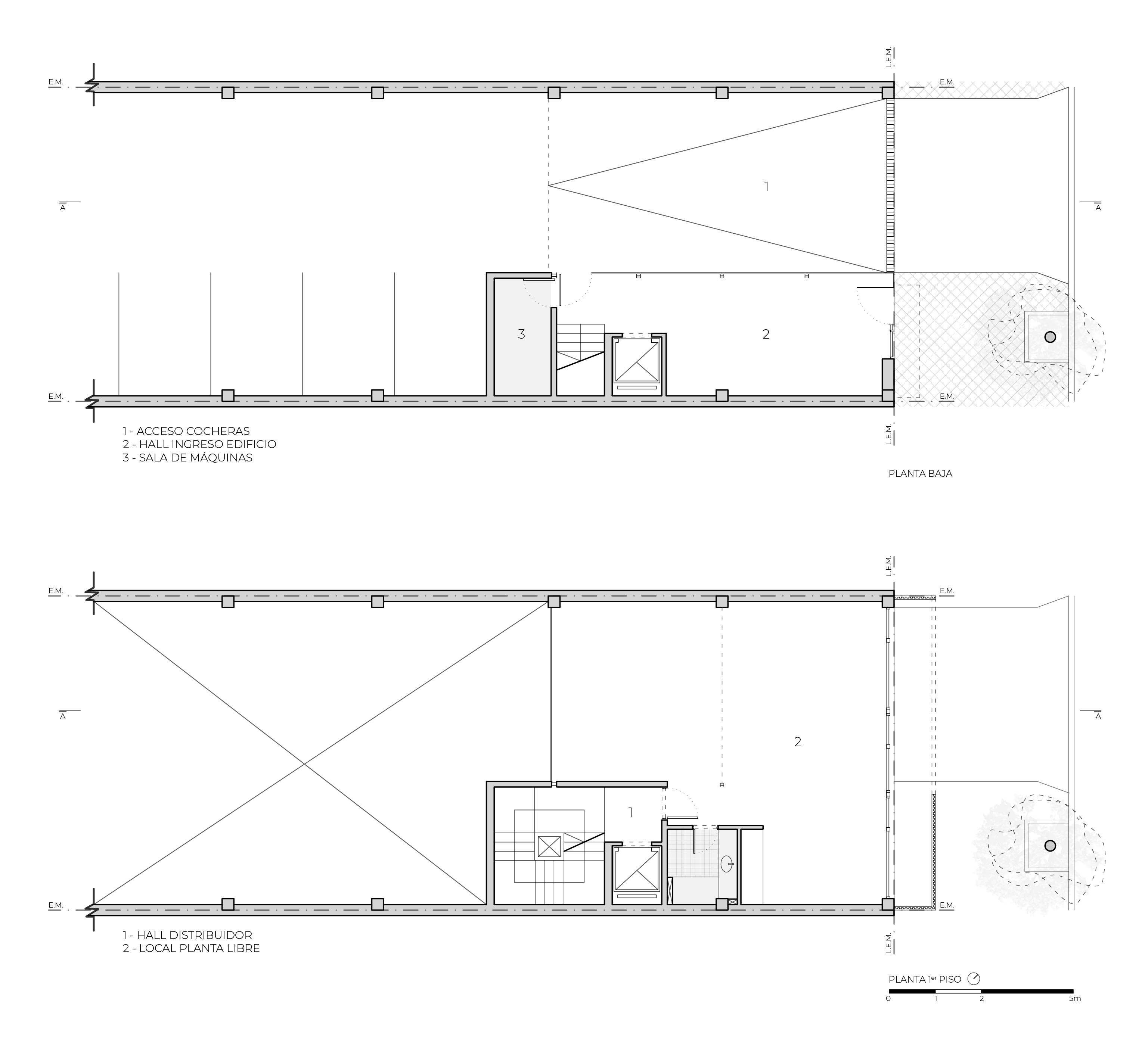
En este contexto, una estructura abandonada sobre una cochera en uso, debe transformarse en un edificio de rentas, con la premisa de sacar el mayor rédito a la construcción existente con un bajo presupuesto.
Haciendo eco a la incertidumbre y heterogeneidad circundante proponemos un edificio ambiguo y flexible aprovechando las posibilidades que nos da la planta libre de la estructura existente.
Adhiriéndole un nuevo entrepiso y una cubierta metálica colmamos la superficie que nos permite la reglamentación y se conforma el esquema basamento-desarrollo-remate, poniéndonos en relación con la escala propuesta por la nueva ordenanza para este sector de la ciudad.
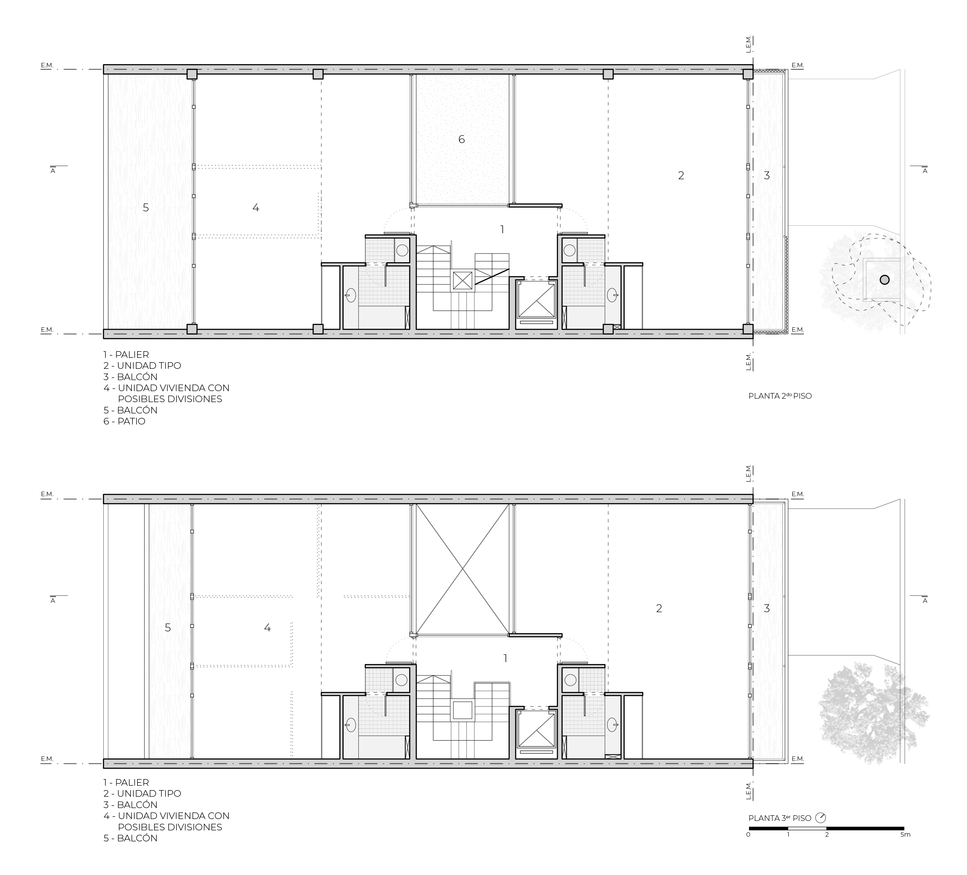
La construcción existente de 8,66m de frente y 25m de fondo estaba compuesta por cinco módulos estructurales paralelos a la calle que por medio de importantes vigas se encontraban libres de columnas en al ancho del lote.
Liberando el módulo central se ubican allí las circulaciones verticales junto con un patio que organiza, ventila e ilumina las unidades y los espacios comunes. El edificio queda dividido en dos unidades por piso, en relación directa al patio central. La ubicación estratégica de los núcleos sanitarios y de servicios en cada unidad permite que, mediante simples operaciones, el espacio pueda alojar diversos usos: en principio la planta libre es propuesta para alojar oficinas pero, interpretando la posibilidad de una realidad económica fluctuante, pueden transformarse en departamentos de un dormitorio a través de la colocación de un tabique y una puerta o en un departamento de dos dormitorios sumando un nuevo muro.
El carácter híbrido del edificio se refleja en la fachada; una “caja” que reinterpretando las reglamentaciones municipales, a través de desplazamientos en todos sus sentidos, se deconstruye. Dichos deslizamientos generan, desde el interior de las unidades, diversas relaciones con el exterior, logrando que cada sector posea una situación particular.
El uso de la chapa plegada para conformar este cerramiento, es la continuidad de la nueva cubierta metálica en sentido vertical, que se perfora generando una dualidad interior/exterior.
En la obra se empleó una paleta de materiales acotada: vidrio, hormigón y chapa, exponiéndolos tanto en la fachada como en los espacios comunes, a fin de producir un diálogo formal y matérico apelando a la iluminación y calidad espacial como valor agregado a la construcción.
 

Proyecto y dirección: Arq. Martín Aloras.
Colaboradores: Santiago Bueno.
Construcción: Sauce constructora.
Cálculo de estructuras: Ing. Omar Morris.
Ubicación: Jujuy 2351, Rosario Argentina
Superficie del solar: 741 m2
Superficie cubierta: 1077 m2
Fotografías: Walter Salcedo.
Años: 2011/2014