MARTIN ALORAS
Edificio SC
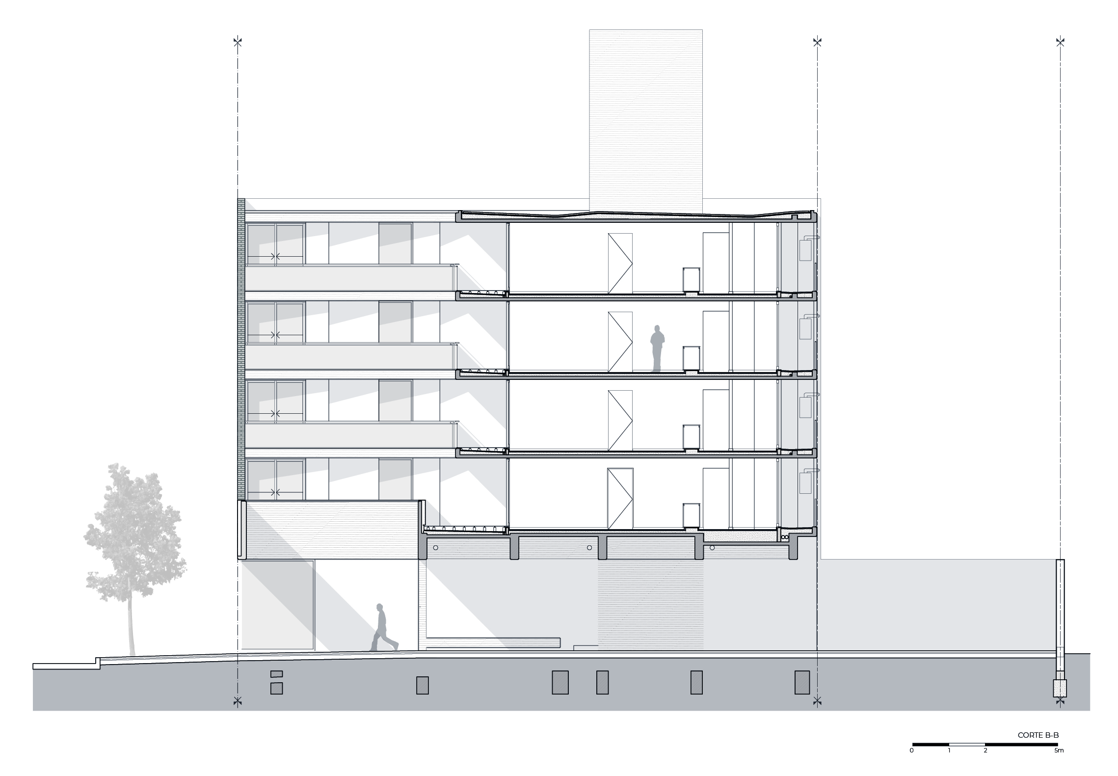
El proyecto se define por su gran local de uso comercial ubicado en planta baja, que restringe el área destinada al ingreso de las unidades de vivienda en relación a la calle empujándola hacia el fondo.

La acción de “empujar” determina la ubicación de las circulaciones y un sistemático retranqueo de los espacios que conforman las unidades.

Este edificio entre “medianeras” trasciende su condición, cuando la materialidad de las mismas conforma también la piel de las otras caras de la construcción. Esta caja se hace permeable en el corte diagonal que une los puntos dados por los vértices del recorte.

La operación se transforma en un complejo que determina el carácter de edificio y lo ordena mediante los balcones triangulares resultantes detrás de la fragmentada geometría dada por los sucesivos retranqueos. A su vez, separa las unidades y las abre hacia el norte multiplicando las visuales.
Proyecto y dirección: Arq. Martín Aloras.
Colaboradores: Germán Merciadri - Leandro Part - Juan Emilio Brun - Sofía Giancarelli.
Construcción: PH Constructora SRL.
Cálculo de estructuras: Ing. Omar Morris.
Ubicación: Avenida Sargento Cabral 1049, San Lorenzo, Argentina.
Superficie del solar: 366 m2
Superficie cubierta: 1081 m2
Fotografías: Walter Salcedo.
Año: 2018 - 2021