MARTIN ALORAS
Edificio Victoria
Situado en la intersección de Bv. Oroño y Calle Jujuy, en pleno corazón del Barrio Pichincha de la ciudad de Rosario. Considerado un edificio de valor patrimonial, la construcción supera los 100 años de antiguedad, poseyendo un gran deterioro y tomada por personas (ocupas).
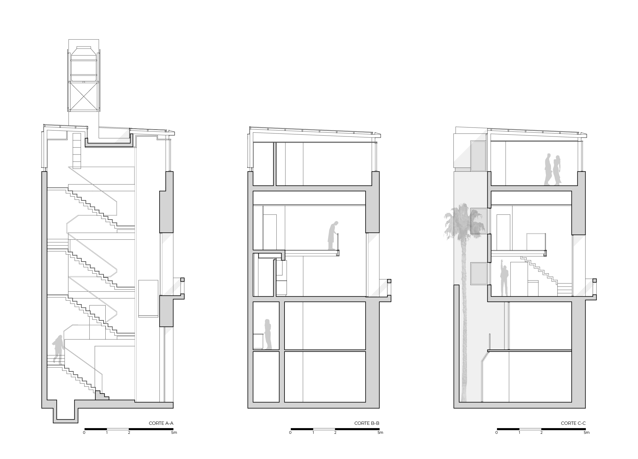
Al formar parte de un negocio inmobiliario, se plantea la recuperación del edificio, incorporándole más unidades para su futura rentabilidad. La nueva intervención debía otorgarle el menor peso posible al edificio existente, por lo cual se decide emplear un sistema constructivo en seco invirtiendo la lógica estructural: tanto la escalera como los muros cuelgan desde la nueva cubierta a fin de que la antigua construcción sea afectada lo menor posible.
La obra actual se suma a la huella existente generando un espacio de unidades desiguales. En la búsqueda de llevar a los límites un lenguaje matérico y formal, el sistema constructivo de la intervención se deja al descubierto tanto en la fachada como en la contra fachada, quedando expuesta la chapa. Interiormente, en los espacios comunes se utiliza una paleta de materiales completa en contraposición con la empleada en los departamentos. El cambio genético sufrido por el edificio existente queda expuesto mediante la utilización de aberturas de aluminio. La recuperación se plantea desde el romanticismo, donde la nueva intervención se reduce a depositar sobre lo existente una nueva cubierta.
Proyecto y dirección: Arq. Martín Aloras.
Colaboradores: Gonzalo Catena.
Construcción: Matías Preis Construcciones.
Cálculo de estructuras: Ing. Omar Morris.
Ubicación: Bv. Oroño esquina Jujuy, Rosario, Argentina.
Superficie del solar: 260 m2
Fotografías: Gonzalo Catena.
Años: 2008 / 2011