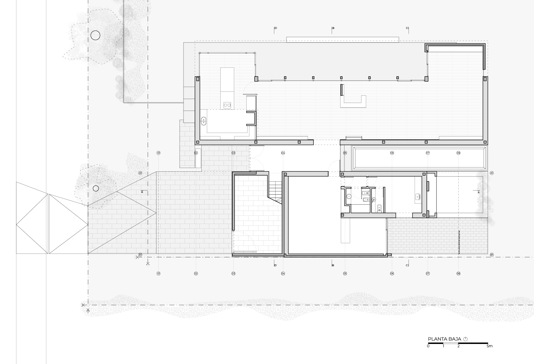
Casa CR - ampliacion
				
				Oximorando
 
“En el páramo colmado retumbó como un suspiro el silente ruido de tu paso quieto y alteró inmutable la paz anárquica de mis ajenas e íntimas ensoñaciones existenciales.
Desde su contigua lejanía, alguien se rebeló mansamente y cerró sus ojos contemplando la escena ausente con una beatitud diabólica como sólo ella (o yo) podíamos intentar en vano, lográndolo.
Esa noche habías regresado sin irte y el día anterior me matabas de muerte natural.”
 
La ampliación de una vivienda en un barrio cerrado de la ciudad de Funes es un encargo que nos llega para resolver un programa que prácticamente duplicará la superficie existente.
Debemos trabajar sobre una reconocida construcción apoyada sobre el boulevard de la urbanización, que desde antaño compone con la vegetación la fisonomía del sector.
La casa, una pieza blanca, de líneas puras y elegante pone sobre la mesa valiosos interrogantes.
¿Es la ampliación un completamiento de la misma?  ¿O en su contraste una composición? ¿Quizá podemos encontrar otra manera de entender dos tiempos de una obra aparentemente acabada?
Pensar en tomar decisiones de manera amable pero contrapuesta es una posible respuesta.
En ese diálogo, formal y conceptual, diseñamos una caja que se desvanece, se fragmenta, se esconde, pero muestra. La caja cierra, pero también abre y prácticamente flota detrás de la construcción existente. Creando así una pieza reconocible que por momentos pierde peso en casi todos sus sentidos dando lugar a la memoria del vacío.
Una segunda piel envuelve la fachada y resuelve al fragmentar, alivianar la presencia de la nueva construcción buscando a la vez delinearse como una pieza pura, delicada.
Este revestimiento compuesto por la sucesión de tubos esconde las aberturas, y a su vez hace de parasoles protegiéndolas del sol del Este y del Oeste cumpliendo una función específica.
Estas decisiones contrapuestas y complementarias formaron parte de las ideas y del proceso proyectual.
El complejo andar de este trabajo pareciera declararse en el hermoso texto de Fernando Aloras.
				
				Proyecto y dirección: Arq. Martín Aloras.
Colaboradores: Germán Merciadri - Leandro Part - Sofía Giancarelli.
Construcción: CEO Construcciones SRL.
Cálculo de estructuras: Ing. Luciano Lopez.
Ubicación: Country Kentucky, Funes, Argentina.
Superficie del solar: 1936 m2
Superficie cubierta: 261 m2
Fotografía: Ramiro Sosa.
Año: 2020
Distinciones: Premio Capsf Obra Construida 2021: Primer Premio, categoría: Reformas y ampliaciones.