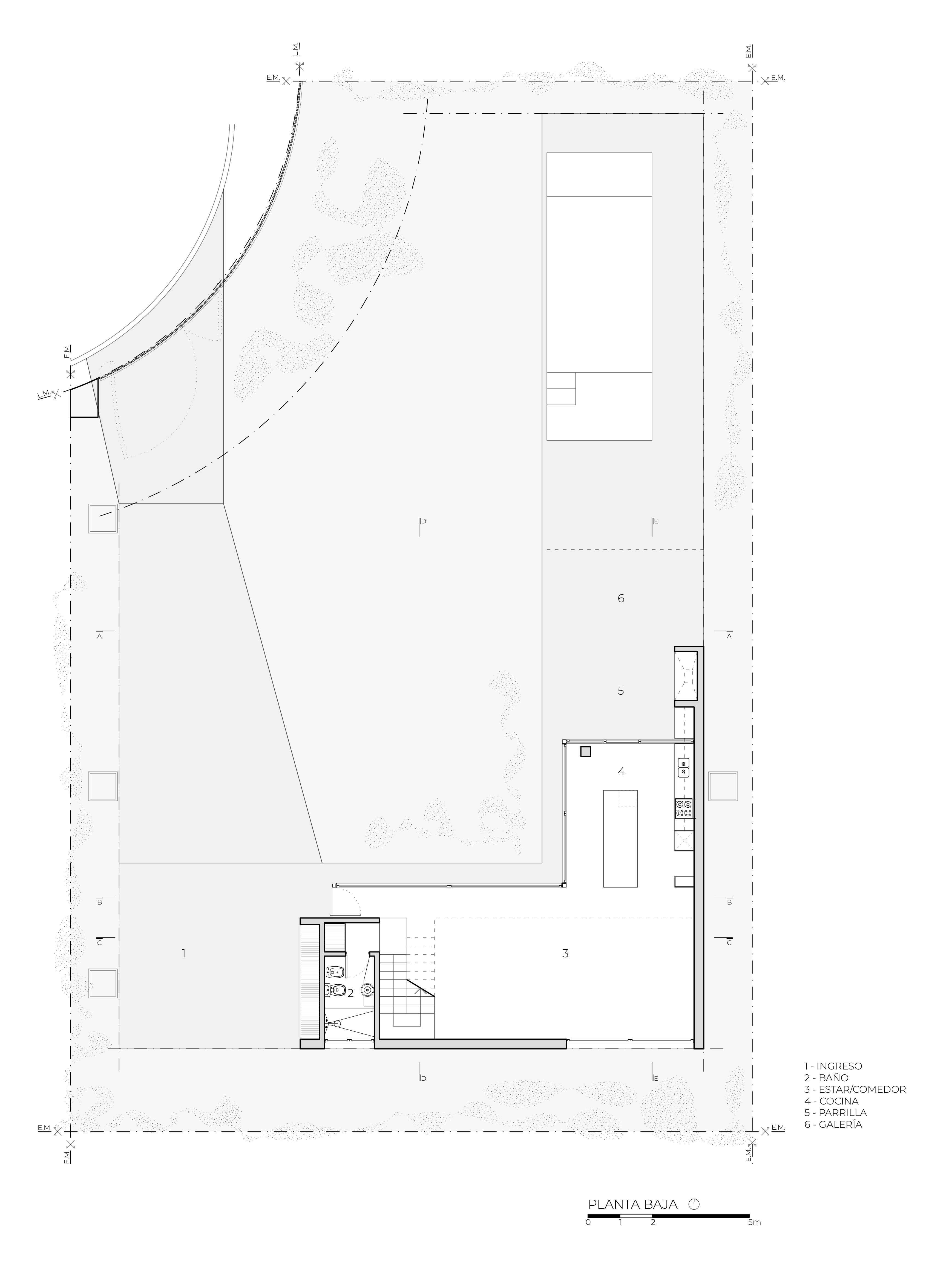
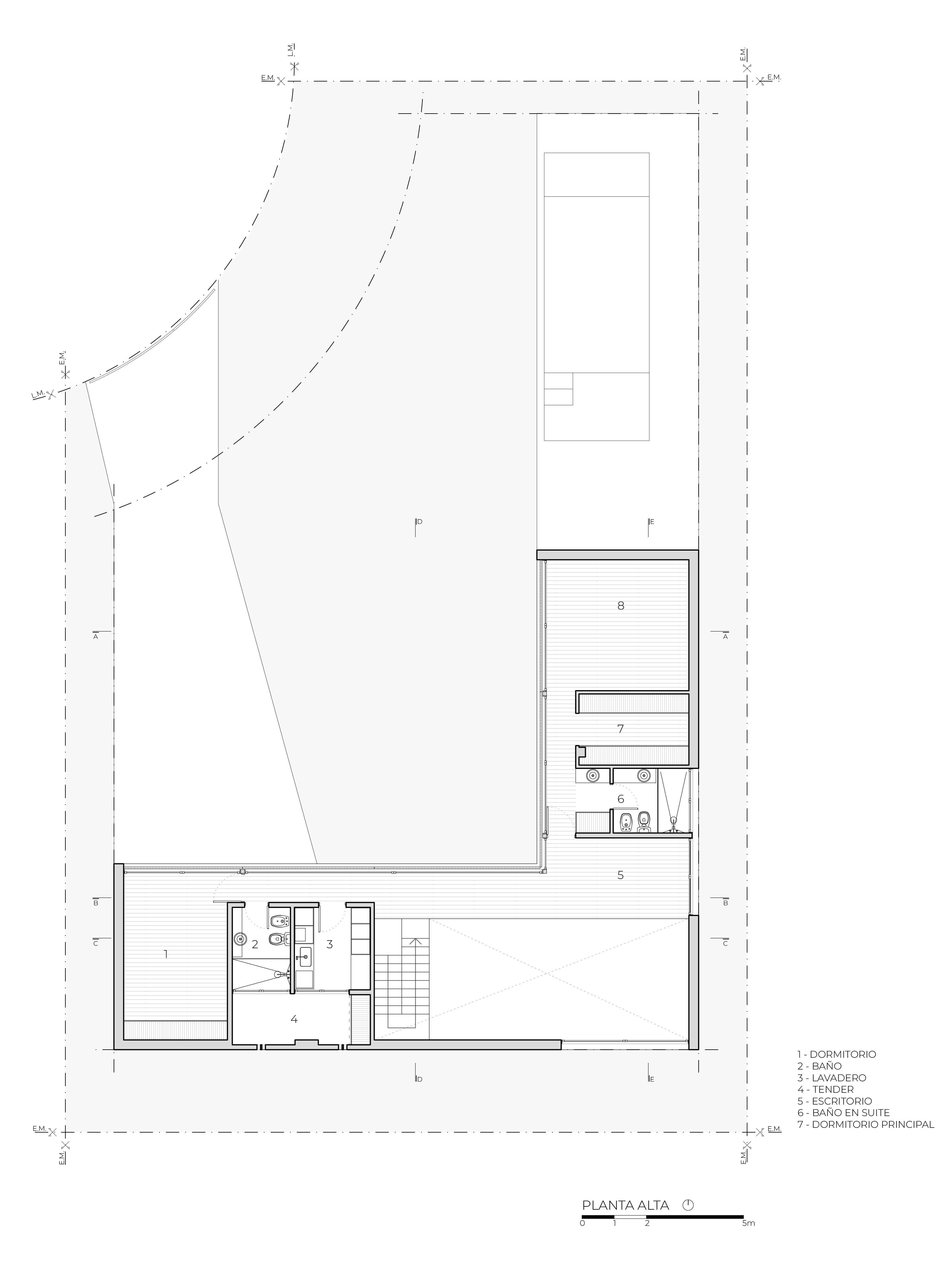
MARTIN ALORAS
Casa L182
Proyecto y dirección: Arq. Martín Aloras.
Colaboradores: Germán Merciadri - Leandro Part - Sofía Giancarelli.
Cálculo de estructuras: Ing. Cristián Gres
Ubicación: Barrio El molino, Roldán, Argentina.
Superficie del solar:  637m2
Superficie cubierta:  187m2
Año: 2025